Mieszkanie na sprzedaż Warszawa, Praga-Południe, Saska Kępa, Wandy

1 pokoj
37.50 m²
18 640,00 zł/m2
parter
ACO-MS-5028
Oblicz ratę kredytu

699 000 zł

Mieszkanie na sprzedaż
Oferta specjalna

Szczegóły oferty

Symbol oferty ACO-MS-5028
Powierzchnia 37,50 m²
Powierzchnia użytkowa [m2] 37,50 m²
Liczba pokoi 1
Rodzaj budynku blok
Technologia budowlana cegła
Standard
Piętro parter
Liczba pięter w budynku 3
Stan lokalu dobry
Mies. czynsz admin. 544 PLN
Okna PCV
Instalacje częściowo wymienione
Balkon brak
Rok budowy 1962
Gaz jest
Woda ciepła - miejska
Ogrzewanie centralne
Drzwi antywłamaniowe tak
piwnica tak, 6,00 m²
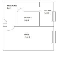
Pomieszczenia
Powierzchnia pokoi 19,5 m2
Podłogi pokoi deska barlinecka
Typ kuchni oddzielna
Rodzaj kuchni jasna z oknem
Powierzchnia kuchni 6,5 m2
Powierzchnia łazienki [m2] 3 m2
Powierzchnia przedpokoi 8 m2

Opis nieruchomości

37,5 m2 w sercu Saskiej Kępy.


Bliskie sąsiedztwo czarownej ulicy Francuskiej.

Nieopodal Stadion Narodowy, Park Skaryszewski, liczne restauracje, kawiarnie, sklepy, punkty usługowe.


Mieszkanie jednopokojowe z możliwością przebudowy i urządzenia drugiego pokoju/ sypialni.


Obecnie pokój (19,5 m2), oddzielna widna kuchnia (6,5 m2), łazienka (3 m2), przedpokój (8 m2).


Stan ogólnie do zamieszkania, ale można unowocześnić.
Stolarka okien PCV, drzwi wejściowe antywłamaniowe Gerda, łazienka w stanie dobrym.


Własność lokalu i gruntu.

Budynek zadbany po częściowej wymianie instalacji. Zarządzany przez Wspólnotę.
Czysta klatka, po 3 lokale na piętrze. Jest duża piwnica.
| Zapraszam na prezentację.

Kalkulatory

Kalkulator kredytowy

Wysokość raty

PLN
%

Kalkulator kosztów

Podatek od czynności cywilno-prawnych

Taksa notarialna
(opłata notarialna)

Wniosek o wpis do WKW

VAT od prowizji
agencji nieruchomości

Vat od taksy notarialnej
(opłaty notarialnej)

Prowizja agencji nieruchomości

Wypisy aktu notarialnego

Razem

Uwaga: mogą wystąpić dodatkowe opłaty za założenie księgi wieczystej oraz ustanowienie hipoteki.

PLN
PLN
PLN
PLN
PLN
PLN
%
PLN

Podobne oferty

Oferta specjalna

Mieszkanie na sprzedaż

Warszawa, Praga-Południe

2 pokoje 49 m2 13 374,47 zł/m2
Oferta specjalna

Manager

Proszę wprowadzić poprawne imię i nazwisko
Proszę wprowadzić poprawny numer telefonu
Proszę wprowadzić poprawny adres e-mail
Proszę zaznaczyć wymagane zgody
Rozwiąż równanie:
12 6
Niepoprawny wynik